Bildegalleri

Malin Hveem v/Nordvik avd. Frogner presenterer Bestumveien 2D!
Solgt
Bestum / Ullern
Delikat 4-roms o/2 plan m/stor, solrik vestvendt balkong på ca.10 kvm|3 soverom|Kort vei til "alt"|2 min gange til sjøen
Prisantydning5 200 000 kr
Nøkkelinfo
- Boligtype
- Leilighet
- Eieform
- Selveier
- Soverom
- 3
- Internt bruksareal
- 83 m² (BRA-i)
- Bruksareal
- 85 m²
- Eksternt bruksareal
- 2 m² (BRA-e)
- Balkong/Terrasse
- 10 m² (TBA)
- Byggeår
- 1955
- Rom
- 4
- Tomteareal
- 2 588 m²
Fasiliteter
Balkong/Terrasse
Barnevennlig
Bredbåndstilknytning
Kjæledyr tillatt
Kabel-TV
Offentlig vann/kloakk
Parkett
Sentralt
Vaktmester-/vektertjeneste
Om boligen
Velkommen til Bestumveien 2D!
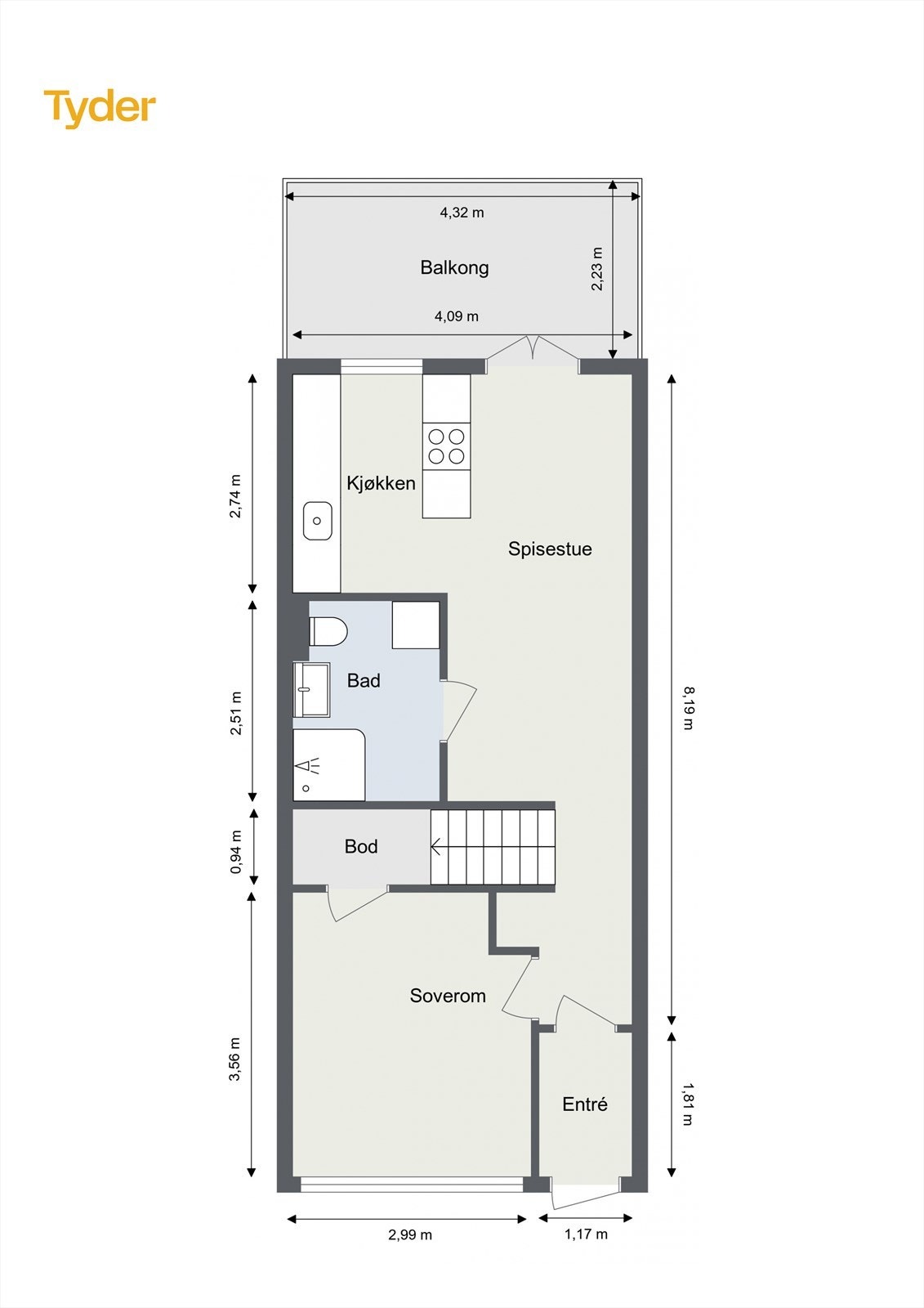
En meget lys og delikat 4-roms selveierleilighet o/2 plan m/sentral beliggenhet på Bestum.
Leiligheten har en gjennomgående & arealeffektiv planløsning m/gode innredningsmuligheter. De store vindusflatene gir godt m/naturlig lysinnslipp til rommene. Sentral beliggenhet m/gangavstand til skøyen hvorav diverse servicefasiliteter samt buss i ca. 2 min gangavstand.
Kort om eiendommen:
- Selveierleilighet o/2 plan m/inngang i byggets 1 etasje.
- Stor, solrik & vestvendt balkong på ca. 10 kvm
- Arealeffektiv m/god planløsning
- 3 soverom
- Delikat baderom fra 2011
- Tv/bredbånd ink.
- Kort vei til skoler, barnehager & gode kollektiv forbindelser
- Gang & sykkelstier helt til sentrum, sjøen & mot lysaker
- Godt drevet sameie
- Gode lagringsmuligheteter
En meget lys og delikat 4-roms selveierleilighet o/2 plan m/sentral beliggenhet på Bestum.
Leiligheten har en gjennomgående & arealeffektiv planløsning m/gode innredningsmuligheter. De store vindusflatene gir godt m/naturlig lysinnslipp til rommene. Sentral beliggenhet m/gangavstand til skøyen hvorav diverse servicefasiliteter samt buss i ca. 2 min gangavstand.
Kort om eiendommen:
- Selveierleilighet o/2 plan m/inngang i byggets 1 etasje.
- Stor, solrik & vestvendt balkong på ca. 10 kvm
- Arealeffektiv m/god planløsning
- 3 soverom
- Delikat baderom fra 2011
- Tv/bredbånd ink.
- Kort vei til skoler, barnehager & gode kollektiv forbindelser
- Gang & sykkelstier helt til sentrum, sjøen & mot lysaker
- Godt drevet sameie
- Gode lagringsmuligheteter
NB: Knappen for å vise hele beskrivelsen har kun en visuell effekt.
NB: Knappen for å vise hele beskrivelsen har kun en visuell effekt.
Salgsoppgaven beskriver vesentlig og lovpålagt informasjon om eiendommen
Se komplett salgsoppgaveNyttige lenker
Nærområdet
Nordvik Frogner
Annonseinformasjon
| FINN-kode | 382226276 |
|---|---|
| Sist endret | 08. des. 2024 17:04 |
| Referanse | 14-0764/24 |
Annonsene kan være mangelfulle i forhold til lovpålagt opplysningsplikt. Før bindende avtale inngås oppfordres interessenter til å innhente komplett informasjon fra meglerforetaket, selger eller utleier.
















































