Bildegalleri

Velkommen til John Strandruds vei 13 - Presentert av Keyhan Ascari v/EIE eiendomsmegling Sandvika
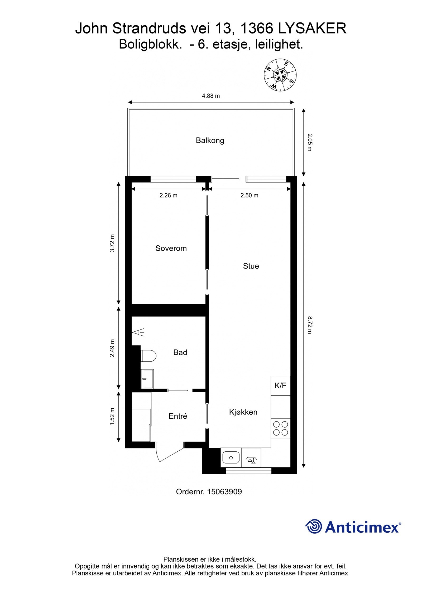
MODERNE 2-ROMS ENDELEILIGHET - STOR BALKONG - SJØNÆRT - HEIS - MULIGHET FOR GARASJEPLASS
Nøkkelinfo
- Boligtype
- Leilighet
- Eieform
- Selveier
- Soverom
- 1
- Internt bruksareal
- 41 m² (BRA-i)
- Eksternt bruksareal
- 9 m² (BRA-e)
- Balkong/Terrasse
- 10 m² (TBA)
- Etasje
- 6
- Byggeår
- 2015
- Energimerking
- C - Mørkegrønn
- Rom
- 2
- Tomteareal
- 7 618 m² (eiet)
Fasiliteter
Om boligen
Velkommen til John Strandruds vei 13 - Presentert av Keyhan Ascari v/EIE eiendomsmegling Bærum
Lys endeleilighet med sentral beliggenhet på Fornebu. Praktisk planløsning med bad, entré, stue og kjøkken, og lekkert påkostet soverom. Leiligheten har egen balkong og felles takterrasse. Moderne, smarte løsninger som vannbåren gulvvarme og balansert ventilasjon som sikrer lave kostnader. Leiligheten skiller seg ut som endeleilighet med hjørnebalkong. Fra leiligheten og balkongen har du utsikt over Fornebuporten og mot Asker (syd-vest).
Høydepunkter:
-Balkong på 10 kvm
-Stor bod på 9 kvm
-Gode solforhold + kveldssol
-Praktisk planløsning
-1-stavs parkett
-Effektiv leilighet med lave kostnader
-Sjønært
-Snekkerbygd soverom
-Nymalt
-Mulighet for kjøp eller leie av garasjeplass
-Gratis gjesteparkering
Salgsoppgaven beskriver vesentlig og lovpålagt informasjon om eiendommen
Se komplett salgsoppgaveNærområdet
EIE eiendomsmegling Bærum
Annonseinformasjon
| FINN-kode | 387303334 |
|---|---|
| Sist endret | 25. jan. 2025 01:24 |
| Referanse | 36240583 |
Annonsene kan være mangelfulle i forhold til lovpålagt opplysningsplikt. Før bindende avtale inngås oppfordres interessenter til å innhente komplett informasjon fra meglerforetaket, selger eller utleier.






























