Bildegalleri

losje15-1-1
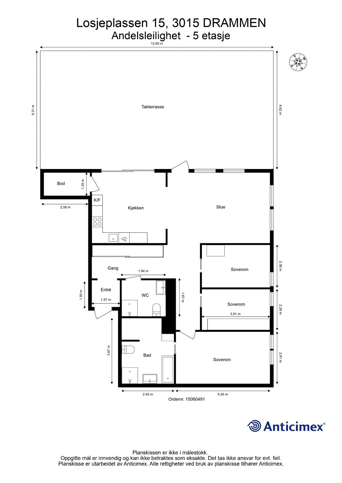
Delikat toppleilighet med 82 kvm skjermet og solrik terrasse, 3 soverom, 2 bad, 2 parkeringsplasser. Bygget har heis.
Nøkkelinfo
- Boligtype
- Leilighet
- Eieform
- Andel
- Soverom
- 3
- Internt bruksareal
- 126 m² (BRA-i)
- Bruksareal
- 131 m²
- Eksternt bruksareal
- 5 m² (BRA-e)
- Balkong/Terrasse
- 82 m² (TBA)
- Etasje
- 5
- Byggeår
- 2017
- Energimerking
- D - Mørkegrønn
- Tomteareal
- 3 478 m² (eiet)
Fasiliteter
Om boligen
Ytterst delikat toppleilighet med tilbaketrukket, vestvendt terrasse på 82 kvm. Leiligheten ligger i 5.etasje, har pen utsikt og gangavstand til alle byens fasiliteter inkl. det nye sykehuset med Helsepark.
2 romslige parkeringsplasser i garasje. Heis opp til leilighetsplan.
Leiligheten har en smart planløsning med 3 soverom, 2 fulle bad, rikelig med plass til garderober, innvendig bod, ekstern sportsbod, 2 ?yttbare boder (en i garasje og en på terrasse) og stue med delvis åpen kjøkkenløsning. Her er det plass til langbord. Utgang til terrasse både fra kjøkken og fra stue.
Høy standard med kjøkkeninnredning og garderobeløsninger fra "Drømmekjøkkenet", japansk badekar på bad, plassbygde garderober og bokhyller, vannbåren varme, parkett på gulv og fjernstyrt pergolatak med integrert belysning.
Salgsoppgaven beskriver vesentlig og lovpålagt informasjon om eiendommen
Se komplett salgsoppgaveNyttige lenker
Nærområdet
Dialog Eiendomsmegling AS avd Drammen
Annonsene kan være mangelfulle i forhold til lovpålagt opplysningsplikt. Før bindende avtale inngås oppfordres interessenter til å innhente komplett informasjon fra meglerforetaket, selger eller utleier.




































