Bildegalleri

Sørmegleren v/ Johan R. Elieson har gleden av å ønske velkommen til visning av Grågåsveien 45A!
Solgt
Vågsbygd/Åsane
Stor og sentralt beliggende 3-roms andelsleil med balkong og p.plass i kjeller! Heis i bygget. Nytt kjøkken/bad i 2019
Prisantydning2 650 000 kr
Nøkkelinfo
- Boligtype
- Leilighet
- Eieform
- Andel
- Soverom
- 2
- Internt bruksareal
- 84 m² (BRA-i)
- Bruksareal
- 86 m²
- Eksternt bruksareal
- 2 m² (BRA-e)
- Balkong/Terrasse
- 18 m² (TBA)
- Etasje
- 3
- Byggeår
- 1978
- Energimerking
- E - Rød
- Rom
- 3
- Tomteareal
- 42 417 m² (eiet)
Fasiliteter
Balkong/Terrasse
Barnevennlig
Garasje/P-plass
Heis
Rolig
Turterreng
Om boligen
Velkommen til visning av en romslig 3-roms andelsleilighet i Grågåsveien 45A! Store deler av leiligheten ble pusset opp i 2019, hvor både kjøkken og badet ble tatt. Fra stuen er det utgang til en romslig, usjenert balkong. Parkeringsplass i felles garasjeanlegg.
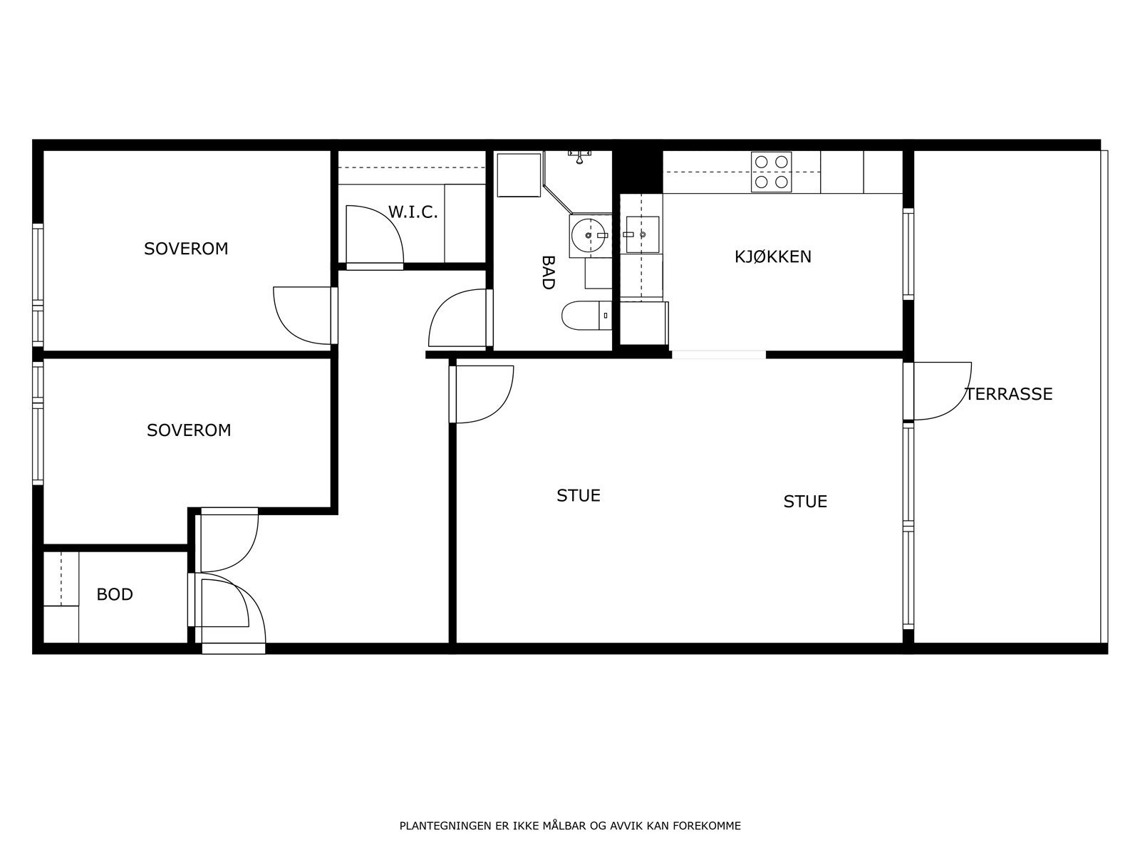
Leiligheten ligger i byggets 3.etg og inneholder følgende planløsning:
Entre/mellomgang, stor stue med tilkomst til balkong og delvis åpen kjøkkenløsning, to soverom, baderom, bod og garderobe.
Det medfølger to boder i kjeller.
Flytter du inn hit vil du ha det meste i nærheten. Nærmeste dagligvarebutikk ligger i nabobygget (Spar Åsane), samt at du har gang- og sykkelavstand til Vågsbygd senter. Det går også hyppige bussavganger like ved.
Velkommen til visning!
Leiligheten ligger i byggets 3.etg og inneholder følgende planløsning:
Entre/mellomgang, stor stue med tilkomst til balkong og delvis åpen kjøkkenløsning, to soverom, baderom, bod og garderobe.
Det medfølger to boder i kjeller.
Flytter du inn hit vil du ha det meste i nærheten. Nærmeste dagligvarebutikk ligger i nabobygget (Spar Åsane), samt at du har gang- og sykkelavstand til Vågsbygd senter. Det går også hyppige bussavganger like ved.
Velkommen til visning!
NB: Knappen for å vise hele beskrivelsen har kun en visuell effekt.
NB: Knappen for å vise hele beskrivelsen har kun en visuell effekt.
Salgsoppgaven beskriver vesentlig og lovpålagt informasjon om eiendommen
Se komplett salgsoppgaveNyttige lenker
Nærområdet
Eiendomsmegler Norge Kristiansand
Best der du bor
Annonseinformasjon
| FINN-kode | 394082432 |
|---|---|
| Sist endret | 01. mars 2025 11:44 |
| Referanse | SORM11.2527 |
Annonsene kan være mangelfulle i forhold til lovpålagt opplysningsplikt. Før bindende avtale inngås oppfordres interessenter til å innhente komplett informasjon fra meglerforetaket, selger eller utleier.































