Bildegalleri

Krogsveen v/ Mats Sandstøl har gleden av å presentere leiligheten i Dues vei 38!
Solgt
Eiganes
Lekker selveierleilighet i 7.etasje | Vestvendt innglasset balkong med fantastisk utsikt. Heis og mulighet for parkering
Prisantydning3 200 000 kr
Nøkkelinfo
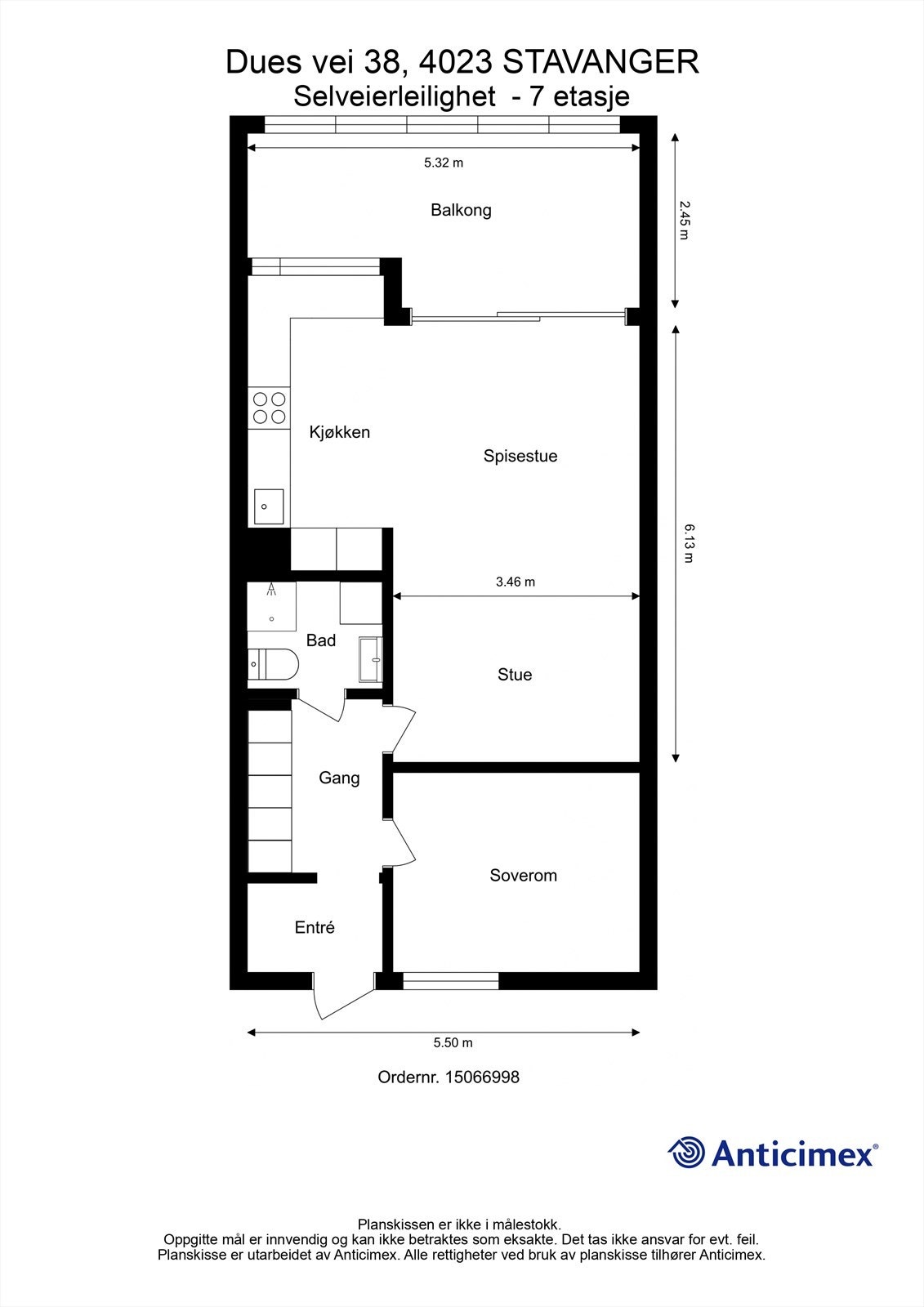
- Boligtype
- Leilighet
- Eieform
- Selveier
- Soverom
- 1
- Internt bruksareal
- 51 m² (BRA-i)
- Bruksareal
- 67 m²
- Eksternt bruksareal
- 3 m² (BRA-e)
- Innglasset balkong
- 13 m² (BRA-b)
- Etasje
- 7
- Byggeår
- 1970
- Energimerking
- F - Rød
- Tomteareal
- 2 575 m² (eiet)
Fasiliteter
Balkong/Terrasse
Barnevennlig
Garasje/P-plass
Heis
Kjæledyr tillatt
Offentlig vann/kloakk
Rolig
Sentralt
Utsikt
Turterreng
Lademulighet
Om boligen
Krogsveen avd. Sandnes v/ Mats Sandstøl har gleden av å presentere Dues vei 38 - en kjekk leilighet i et meget etterspurt område.
Kort fortalt:
Velkommen til visning
Kort fortalt:
- Stor innglasset balkong med gode solforhold
- Smart planløsning med gode møbleringsmuligheter
- Tidløst kjøkken og rikelig med oppbevaring
- Heis og mulighet for parkering
- Bod i underetasje og felles el-bil lader
- Gåavstand til både Mosvatnet og Stokkavatnet
- Stavanger sentrum er kun en kort spasertur unna
- Gode kollektiv tilbud. E39 lett tilgjengelig med bil
Velkommen til visning
NB: Knappen for å vise hele beskrivelsen har kun en visuell effekt.
NB: Knappen for å vise hele beskrivelsen har kun en visuell effekt.
Salgsoppgaven beskriver vesentlig og lovpålagt informasjon om eiendommen
Se komplett salgsoppgaveNyttige lenker
Nærområdet
Krogsveen Sandnes
Verdien av en god megler.
Annonsene kan være mangelfulle i forhold til lovpålagt opplysningsplikt. Før bindende avtale inngås oppfordres interessenter til å innhente komplett informasjon fra meglerforetaket, selger eller utleier.

























