Bildegalleri

Høydefoto av eiendommen.
Inaktiv
Manglerud/Rognerud
Fleksibel enebolig med gode utleiemuligheter | Høyt og fritt beliggende | Attraktivt villaområde
Prisantydning12 500 000 kr
Nøkkelinfo
- Boligtype
- Enebolig
- Eieform
- Selveier
- Soverom
- 7
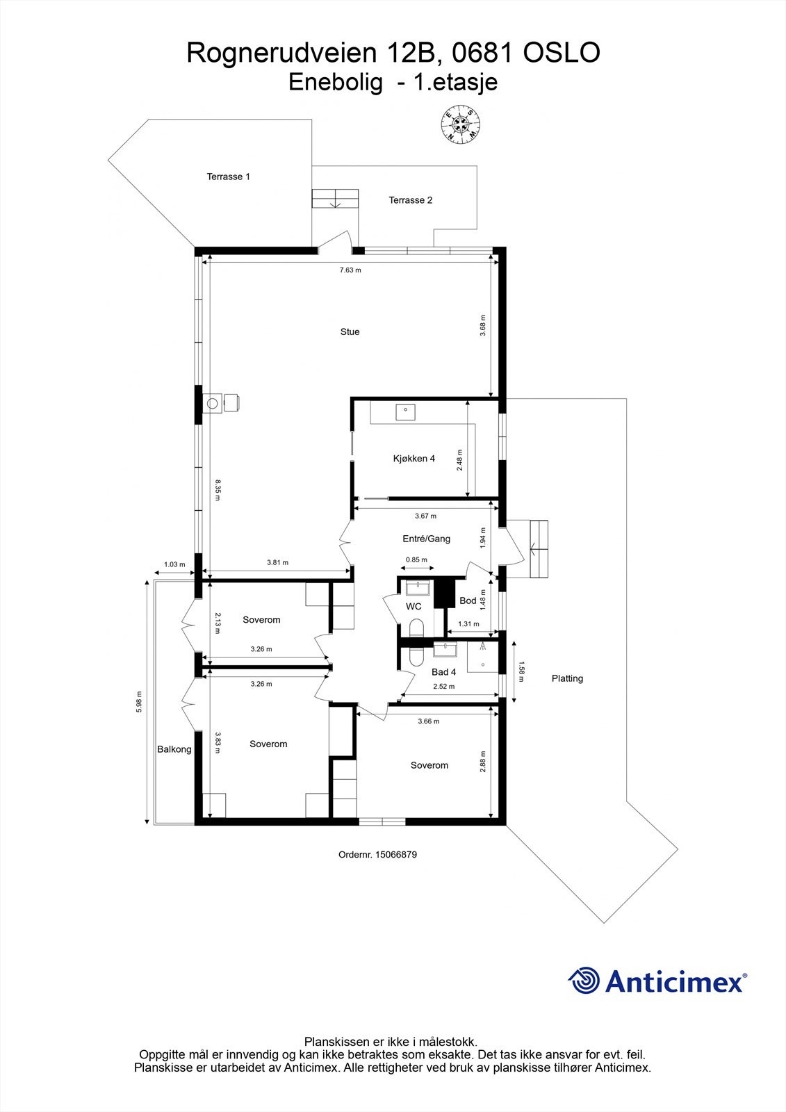
- Internt bruksareal
- 314 m² (BRA-i)
- Bruksareal
- 314 m²
- Balkong/Terrasse
- 12 m² (TBA)
- Byggeår
- 1966
- Energimerking
- G - Oransje
- Rom
- 11
- Tomteareal
- 450 m² (eiet)
Visning
For å delta på visning, ber vi om at du melder deg på. Da sikrer vi at du får nødvendig informasjon og at det er satt av tilstrekkelig med tid. Kontakt megler dersom annet tidspunkt ønskes. Husk å lese salgsoppgaven før visningen, så du stiller forberedt.
Ønsker du kun å bli holdt orientert, kan du fra eiendommens hjemmeside få varsel om solgtpris, eller kontakte megler.
VisningspåmeldingOm boligen
Rognerudveien 12 B er en stor og fleksibel enebolig med gode utleiemuligheter. Eneboligen har en innholdsrik planløsning og bruksarealet er på hele 314 kvm. Bruksmulighetene er mange og bør kunne tilfredsstille de fleste behov. Her bor man i et rolig og meget attraktivt villaområde, det er sentralt med god kollektivdekning og flotte turmuligheter. Boligen ligger høyt, fritt og solrikt med flott utsyn over nærmiljøet. Den delen av tomten som er opparbeidet har flere flotte uteplasser og stor flat plen - perfekt for barnefamilier. Velkommen!
NB: Knappen for å vise hele beskrivelsen har kun en visuell effekt.
NB: Knappen for å vise hele beskrivelsen har kun en visuell effekt.
Salgsoppgaven beskriver vesentlig og lovpålagt informasjon om eiendommen
Se komplett salgsoppgaveNyttige lenker
Nærområdet
Krogsveen Nordstrand
Verdien av en god megler.
Annonseinformasjon
| FINN-kode | 399691591 |
|---|---|
| Sist endret | 11. apr. 2025 09:54 |
| Referanse | KR44.2519 |
Annonsene kan være mangelfulle i forhold til lovpålagt opplysningsplikt. Før bindende avtale inngås oppfordres interessenter til å innhente komplett informasjon fra meglerforetaket, selger eller utleier.





















































