Bildegalleri

C. J. Kiønigs vei 5 ligger på Bryggerifjellet; Dette er en toppleilighet øverst i bygget med storslagen utsikt over byen.
Solgt
Bryggerifjellet / sentrum
Fabelaktig toppleilighet på Bryggerifjellet med vidstrakt utsikt over byen. To parkeringsplasser med billader.
Prisantydning7 800 000 kr
Nøkkelinfo
- Boligtype
- Leilighet
- Eieform
- Selveier
- Soverom
- 3
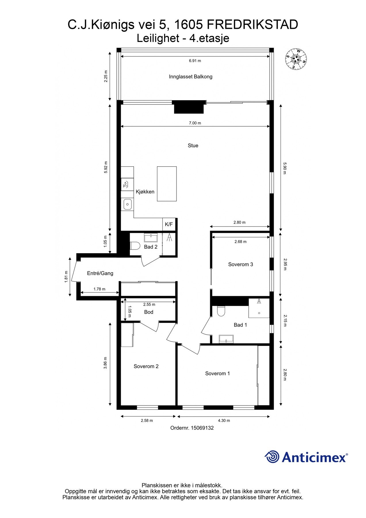
- Internt bruksareal
- 103 m² (BRA-i)
- Bruksareal
- 126 m²
- Eksternt bruksareal
- 6 m² (BRA-e)
- Innglasset balkong
- 17 m² (BRA-b)
- Etasje
- 4
- Byggeår
- 2015
- Energimerking
- C - Mørkegrønn
- Tomteareal
- 5 362 m² (eiet)
Fasiliteter
Barnevennlig
Balkong/Terrasse
Garasje/P-plass
Heis
Offentlig vann/kloakk
Peis/Ildsted
Turterreng
Utsikt
Vaktmester-/vektertjeneste
Sentralt
Moderne
Rolig
Lademulighet
Balansert ventilasjon
Om boligen
Dette er en romslig og lys 4-roms leilighet med høy komfort. Leiligheten ligger øverst i bygget med storslagen utsikt over byen, den ikoniske Fredrikstadbroen, Hvaler-øyene og videre Sverige i syd og Gressvik i vest. Innendørs er det valgt tidløse interiør- og fargevalg som gir den rette følelsen av modernitet og god standard. Leiligheten har en velfungerende og praktisk planløsning med åpen stue- og kjøkkenløsning med en lekker gasspeis med iøynefallende plassering og utgang til en romslig innglasset balkong, ca. 17 m². Leiligheten har videre tre soverom, to pene bad, bod og entré. Eier har to innendørs biloppstillingsplasser med elbillader og en romslig sportsbod i felles garasjeanlegg. Det er heis i bygget. Bryggerifjellet ligger på en fjellkam på nordsiden av Fredrikstad sentrum. Herfra er det ca. 10 minutters gange til Fredrikstad sentrum med handlegater, kjøpesentre, matbutikker, restauranter og jernbanestasjon like ved på Cicignon. Dette er et populært og rolig område.
NB: Knappen for å vise hele beskrivelsen har kun en visuell effekt.
NB: Knappen for å vise hele beskrivelsen har kun en visuell effekt.
Salgsoppgaven beskriver vesentlig og lovpålagt informasjon om eiendommen
Se komplett salgsoppgaveNærområdet
STAVLUND AS
Vi kan også selge din bolig
Annonseinformasjon
| FINN-kode | 401189188 |
|---|---|
| Sist endret | 17. apr. 2025 15:14 |
| Referanse | 192250049 |
Annonsene kan være mangelfulle i forhold til lovpålagt opplysningsplikt. Før bindende avtale inngås oppfordres interessenter til å innhente komplett informasjon fra meglerforetaket, selger eller utleier.













































