Bildegalleri

Velkommen til Vallastølsvegen 45 presentert av Fana Sparebank Eiendom v/Isaac Dahlin
Solgt
Vallastølsvegen
Påkostet townhouse fra 2024 | Nydelig utsikt | 4 soverom og 2 Bad | Vaskerom | Delikat kjøkken | Altan | Garasjeplass
Prisantydning6 290 000 kr
Nøkkelinfo
- Boligtype
- Rekkehus
- Eieform
- Selveier
- Soverom
- 4
- Internt bruksareal
- 126 m² (BRA-i)
- Bruksareal
- 133 m²
- Eksternt bruksareal
- 7 m² (BRA-e)
- Balkong/Terrasse
- 14 m² (TBA)
- Etasje
- 3
- Byggeår
- 2024
- Energimerking
- A - Rød
- Rom
- 5
- Tomteareal
- 2 948 m² (eiet)
Fasiliteter
Balkong/Terrasse
Barnevennlig
Garasje/P-plass
Kjæledyr tillatt
Ingen gjenboere
Kabel-TV
Offentlig vann/kloakk
Rolig
Sentralt
Utsikt
Turterreng
Lademulighet
Balansert ventilasjon
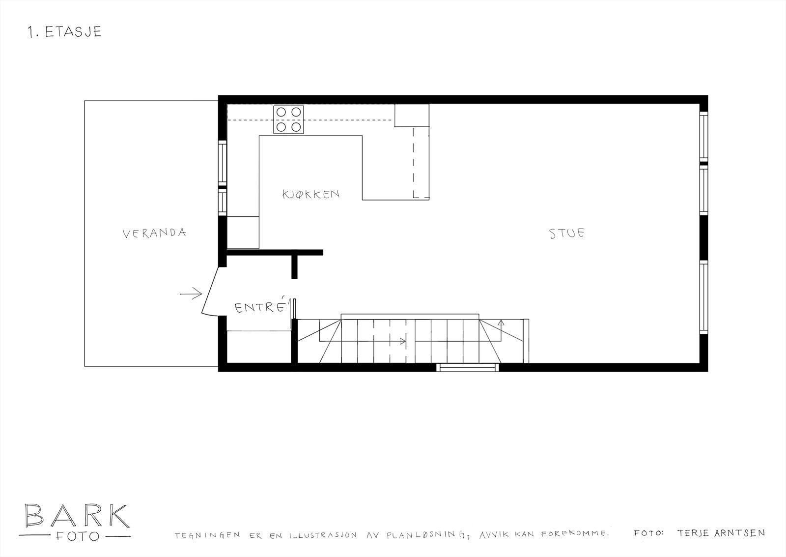
Om boligen
Velkommen til Vallastølsvegen 45 | Et familieperfekt townhouse påkostet for nærmere 570 000kr. Her er alt fra stikkontakter, innerdører, planløsning, kjøkken, bad, varmekabler i gulv med mer blitt oppgradert av nåværende eier. Med kun 6 minutters kjøring til Nesttun Sentrum har vi en sentral men rolig og familievennlig beliggenhet.
Høydepunkt
- Elektrisk påkostet med 22 stykk spotter | 37 stikkontakter og 9 dimmere er oppgradert
- 2 lekre bad | 60x60 fliser
- Spotter i stue og kjøkken
- Over 3 år gjenværende nybyggsgaranti
- Sigdal kjøkken | Påkostet for 269 193kr
- Integrert mikro, stekeovn, kjøleskap og oppvaskmaskin | Halvøy med barkrakk nisje
- Barnesikrede stikkontakter
- Eget vaskerom!
Innhold
Entre, stue og kjøkken, 4 soverom, 2 bad, walk in, vaskerom, bod
Ekstern bod
Høydepunkt
- Elektrisk påkostet med 22 stykk spotter | 37 stikkontakter og 9 dimmere er oppgradert
- 2 lekre bad | 60x60 fliser
- Spotter i stue og kjøkken
- Over 3 år gjenværende nybyggsgaranti
- Sigdal kjøkken | Påkostet for 269 193kr
- Integrert mikro, stekeovn, kjøleskap og oppvaskmaskin | Halvøy med barkrakk nisje
- Barnesikrede stikkontakter
- Eget vaskerom!
Innhold
Entre, stue og kjøkken, 4 soverom, 2 bad, walk in, vaskerom, bod
Ekstern bod
NB: Knappen for å vise hele beskrivelsen har kun en visuell effekt.
NB: Knappen for å vise hele beskrivelsen har kun en visuell effekt.
Salgsoppgaven beskriver vesentlig og lovpålagt informasjon om eiendommen
Se komplett salgsoppgaveNyttige lenker
Nærområdet
Fana Sparebank Eiendom
Annonsene kan være mangelfulle i forhold til lovpålagt opplysningsplikt. Før bindende avtale inngås oppfordres interessenter til å innhente komplett informasjon fra meglerforetaket, selger eller utleier.




































































