Bildegalleri

Hytta - flere bilder kommer!
Langberga tomt 30 - Saltdalshyttas nye flaggskip på unik utsiktstomt helt øverst i feltet! TA KONTAKT FOR VISNING!
- Omkostninger
- 120 000 kr
- Totalpris
- 6 850 000 kr
Nøkkelinfo
- Beliggenhet
- På fjellet
- Boligtype
- Hytte
- Bruksareal
- 158 m²
- Tomteareal
- 993 m²
- Soverom
- 4
- Meter over havet
- 765
Fasiliteter
Visning
Ta kontakt for å avtale visning.Om eiendommen
Beliggenhet
Langberga hyttefelt ligger inn mot Norges vakreste seterdal Gjevilvassdalen som er et yndet friluftsområde året rundt.
Feltet ligger i skrående vestvendt terreng og har i så måte meget gode solforhold fra morgen til kveld.
Tomt 30 ligger som en del av trinn 4 og skiller seg ut ved at vi nå er i det siste byggetrinnet helt øverst i hyttefeltet og at den ligger som den nest siste og høyeste på øvre rekke. Dette gjør at man ikke har noen form for gjennomgangstrafikk og det har blitt kommentert at man føler man er "på taket" i terrenget ift eksisterende bebyggelse.
Fra området har man en helt unik 270-graders utsikt fra Dindalen i sør, via Storhornet i vest og Blåhø i nord. Vakre Rauhovden med sin utrolige utsikt ligger i bakkant og er bare en liten trimtur til fots fra dørstokken din. Her kan man etter en kort gåtur langs brøytet vei spenne på seg skiene rett i Oppdals stamnett på vinterhalvåret. Ønsker man å ta en dag i bakken er det bare en kort 12 minutters kjøretur ned til Vangslia.
De 3 andre årstidene er like så fine med Gjevillvatnet og Trollheimen rett i nabolaget. Langberga er en av norges mest allsidige hyttedestinasjoner for den som ønsker en hytte man kan bruke hele året. En annen unik kvalitet som områdets hyttebeboere nevner er Joker butikken som ligger 5 minutter unna på Festa, hvor praktisk er det ikke med en nærbutikk når man har glemt salsaen til fredagstacoen eller får overraskelsesbesøk på søndags formiddag?(Ja, den er faktisk søndagsåpen også!)
Tar man med at feltet har helt nybygd infrastruktur med tilhørende veistandard, vann, avløp, strøm og fiber så mener vi i Saltdalshytta at dette er det ypperste man kan få på hyttefronten i Oppdal.
I Langberga kommer naturen inn i stua og godt merkede løyper tar deg med ut på tur, HELE ÅRET!
Fjellet venter på deg. Det er du som bestemmer hvilken retning du vil ta.
Generelt
GRUNN- OG UTOMHUS ARBEIDER
Adkomst fra vei mot biloppstillingsplass leveres med gruset overflate. Tomten er en råtomt og deler av denne som blir berørt av grunnarbeidene planeres med stedlige masser. Opparbeidet biloppstillingsplass for 2 biler. Betongplate og ringmur isoleres etter gjeldende forskrifter.
INNVENDIGE OVERFLATER
Alle innvendige overflater leveres med vegger og himlinger av beiset Sprekkpanel i fargen Skigardsgrå. Liggende på vegg og i møneretning i tak. Gerikter, tak- og gulvlister leveres i samme farge som vegg. Foringer leveres i samme farge som vindu NCS S7500-N. Det vil bli et utvalg av farger som kunde kan velge i. Vegger på bad leveres med hvite baderomsplater med flismønster. Gulv i bad og evt vaskerom/sauna leveres flislagt, std str flis 20x20cm grå. Gulv i vf leveres flislagt med flis str 30x60cm grå. Boder leveres med betonggulv. Øvrige gulv er 3-stavs parkettgulv fra Boen. Trapp og innerdører leveres hvitmalt NCS S0502-Y. Utvendige boder leveres uinnredet/uisolert. Hvite ventiler i vegger for tilluft.
YTTERVEGGER OG TAK
Yttervegger med stående Låvepanel med et strøk grunning i lys brun. Isolert med 200mm Glava(150mm+50mm). Vinduer, ytterdører og verandadører leveres ferdig overflatebehandlet etter Tek 17. Farge NCS S7500-N. Tak isolert (200mm + 50mm) og tekkes med torv (ferdigsådd jord). Takrenner, nedløp og pipebeslag leveres i sort lakkert stål.
INNERVEGGER
Leveres med 73mm isolert bindingsverk, paneles på begge sider. Teknisk vegg utføres med 198mm bindingsverk. Bærevegger utføres med 98mm bindingsverk.
ILDSTED OG PIPE:
Std Jøtul stålpipe. Std Jøtul F163 ovn.
FLISLEGGING:
Avretting og legging av flis på gulv VF/bad. Flis str. 20x20cm som std. 30x60cm std i vf.
ELANLEGG
El-anlegg med omfang i henhold til forskrift NEK 400. Det leveres 2 utvendige lysarmaturer og 2 utvendige stikk. Flislagte gulv leveres med varmekabler (unntatt sauna).
RØRLEGGERARBEIDER
Sanitæranlegg med omfang som på plantegninger.
Det leveres utvendig frostsikker kran.
TERRASSER/BALKONGER
Bjelkelag og terrassebord (tykkelse 28mm) av impregnert furu på tram inngangsparti. Terrasse ut over dette er tilvalg.
KJØKKEN- OG BADEINNREDNINGER
Kjøkken leveres i malt heltre furu fra Bakkens Treprodukter. Kjøkken inkluderer hvitevarer og kjøkkenvifte. Baderomsinnredning med skuffer som tegnet og speil, leveres av rørlegger.
FØLGENDE ER IKKE INKLUDERT I KJØPESUMMEN
• Ilustrasjoner i dette prospektet kan inneholde tilvalg som ikke er med i standard leveranse. Eksempelvis tørrmur på fasade.
• Belysning utover det som beskrevet over er ikke inkludert.
• Byggetegninger er kun til illustrasjon og kan inneholde møbler, benker, garderobeskap, senger osv. og plassering av disse. Dette er ikke inkludert i leveransen.
• Kostnader forbundet med kjøpers finansiering, takster og tinglysningsgebyrer
• Stiplede innredninger på tegninger
• Byggestrøm og byggesaksgebyrer
REGULERINGSPLANER
Reguleringsbestemmelser for Langberga Hytteområde (PlanID 2015004 ). Det er for byggetrinnet laget en ferdig situasjonsplan med type hytte og plassering. Kjøper aksepterer dog at endringer av endelig plassering kan endres av bl.a. arronderingsmessige årsaker. Det tas forbehold om godkjenning av prosjektet i Oppdal kommune.
KJØP AV TOMT OG NØKKELFERDIG HYTTE
Saltdalshytta Utvikling AS er hjemmelshaver og selger av tomten. Tomten har byggeklausul til fordel for Saltdalshytta. Saltdalshytta Utvikling AS og Saltdalshytta Entreprenør AS står sammen om den samlede leveransen, hvor Saltdalshytta Utvikling AS leverer råtomten, mens Saltdalshytta Entreprenør AS står for øvrig del av leveransen. Byggesaksgebyr fra Oppdal Kommune på 14.400,- kommer i tillegg.
BETALINGSBETINGELSER
Kjøpesum av tomt (se egen prisoversikt), skal betales senest 14 dager etter avtaleinngåelse. Omkostninger for kjøp av tomt kommer i tillegg til pris oppgitt i prisliste. Dokumentavgift 2,5% av kjøpesum tomt. Tilkoblingsbidrag V/A kr. 45 000,-, tinglysningsgebyr skjøte evt. pant-obligasjon, attestasjonsgebyr statens kartverk følger kommunens og statens satser. Dette betales sammen med tomt. Tilknytningsavgift fibernett kr. 4290,-. Betaling av hytte m/tilvalg betales til Saltdalshytta Entreprenør AS. Vedlagt for hver hytte er egen betalingsplan. Betaling skjer etter fremdrift og tilført verdi.
ÅRLIGE KOSTNADER
Vann og avløp kr. 9250,- pr. år. Andel vedlikehold av tur-skiløyper ved området kr. 500,- pr. år. Organiseres evt. gjennom pliktig medlemskap i Kleberberget-Lanberga Vei og Hytteforening. Årsavgift fibernett avhenger av abonnementstype.
FORBEHOLD
Entreprenøren (SE) forbeholder seg retten til forandringer av planer, detaljer og beskrivelse. Som følge av detaljprosjektering og/eller offentlige krav kan det forekomme endringer i prosjektbeskrivelse og kontraktstegninger. Slike endringer skal ikke forringe kvaliteten av hytten.
KONTRAKT- OG TILVALGSMØTE
Etter at byggestart er besluttet for prosjektet vil kjøper bli kontaktet av prosjektleder for SE og invitert til et møte for å gjennomgå- og signere kontrakt for hytte. I forkant av møtet vil kjøper få tilsendt tilvalgslister som viser hvilke valg som kan gjøres. SE har rett til å ta seg betalt for utarbeidelser av pristilbud, tegninger mv. jf. Bustadsoppføringslova §44.
Adkomst/Tomteforhold
Fra Oppdal sentrum kjører en i retning Sunndalsøra i ca. 15 minutter, og tar til høyre ved skilting til Gjevilvassdalen. Følg veien mot Gjevilvannet, og etter å ha passert bommen følger man veien ca. 700 meter før man tar til høyre og følger Gamle Ordførervei i ca. 500 meter. Der tar man av til venstre og følger veien opp til Kleberberget hyttefelt. Langberga ligger i fortsettelsen av Kleberberget Hyttefelt og trinn 4 finner man helt på toppen og inn til høyre etter det som i dag er ferdigbygde hytter i trinn 3. Tomt 30 ligger nest innerst langs øvre veitrase på oversiden av veien i trinn 4 og er merket med tomteskilt.
Hvorfor tomt 30?
Tomt 30 ligger nest innerst i feltet på oversiden av øvre veitrase med full frisikt over dalføret.
Tomta er den nest siste på rekka og den er faktisk den mest høytliggende av alle tomter i hele Langberga.
Fronten på hytta vil ligge vestvendt med utsikt mot Dindalen, Storhornet og Blåhø. Spisestue og kjøkkendel ligger slik at man sikrer optimale solforhold og den magiske utsikten og kveldssola mot vest og nordvest.
Dette er en helt unik mulighet til å sikre seg noen av de siste absolutt kremtomtene i området!
Innhold
Dette er Saltdalshyttas splitter nye flaggskip. Faktisk er modellen så ny at den ikke har fått noe navn enda!
I denne hytta har logistikk vært noe som har stått i sentrum. I tillegg til hovedinngangen har man en egen dør inn til ytterbod som igjen fører inn til et omkledningsrom og videre til gangen. Meget praktisk sommer som vinter!
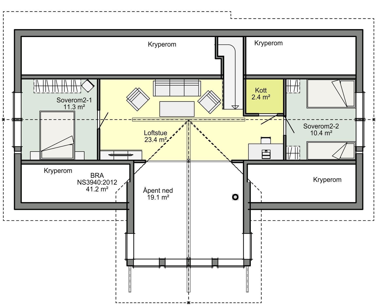
Hytta har 2 bad, sauna og 4 meget gode soverom. Stue og kjøkkendelen har en meget generøs takhøyde der man får utnyttet de gode sol og utsiktforholdene.
Prikken over I`en er loftstua som vil oppleves romslig og luftig med god utsikt ut vinduene i front av hytta.
Standard
Ta kontakt med megler for komplett informasjon
Nærområdet
Saltdalshytta
Annonsene kan være mangelfulle i forhold til lovpålagt opplysningsplikt. Før bindende avtale inngås oppfordres interessenter til å innhente komplett informasjon fra meglerforetaket, selger eller utleier.




