Bildegalleri

Sørmegleren ved Jon A Røsstad har gleden av å ønske deg velkommen til dette flotte landstedet: Frøyslandsveien 22 Trysfjorden / Søgne
Solgt
SØGNE / RØSSTAD
Landsted i Trysfjorden m bilvei helt frem -4 p plasser-solrike uteområder. Nydelig utsikt. Tilhørende brygge og sjøbod
Prisantydning5 490 000 kr
- Omkostninger
- 155 240 kr
- Totalpris
- 5 645 240 kr
- Kommunale avg.
- 9 583 kr per år
Nøkkelinfo
- Beliggenhet
- Ved sjøen
- Boligtype
- Hytte
- Eieform
- Selveier
- Internt bruksareal
- 98 m² (BRA-i)
- Bruksareal
- 112 m²
- Eksternt bruksareal
- 14 m² (BRA-e)
- Balkong/Terrasse
- 40 m² (TBA)
- Tomteareal
- 1 039 m² (eiet)
- Byggeår
- 1986
- Soverom
- 4
- Rom
- 5
- Energimerking
- E - Oransje
- Overtakelse
- Etter avtale.
Fasiliteter
Balkong/Terrasse
Barnevennlig
Bilvei frem
Båtplass
Garasje/P-plass
Hage
Utsikt
Bademulighet
Fiskemulighet
Innlagt strøm
Turterreng
Om boligen
Sørmegleren ved Jon A Røsstad ønsker deg velkommen til dette nydelige landstedet i Søgnes skjærgård. Fritidsboligen har solrike uteområder og nydelig utsikt mot Trysfjorden og ligger høyt, fritt og usjenert for seg selv. Med til fritidsboligen får du sjøbu, brygge, båtplass. 2 parkeringsplasser plasser på egen tomt og 2 på felles tomt.
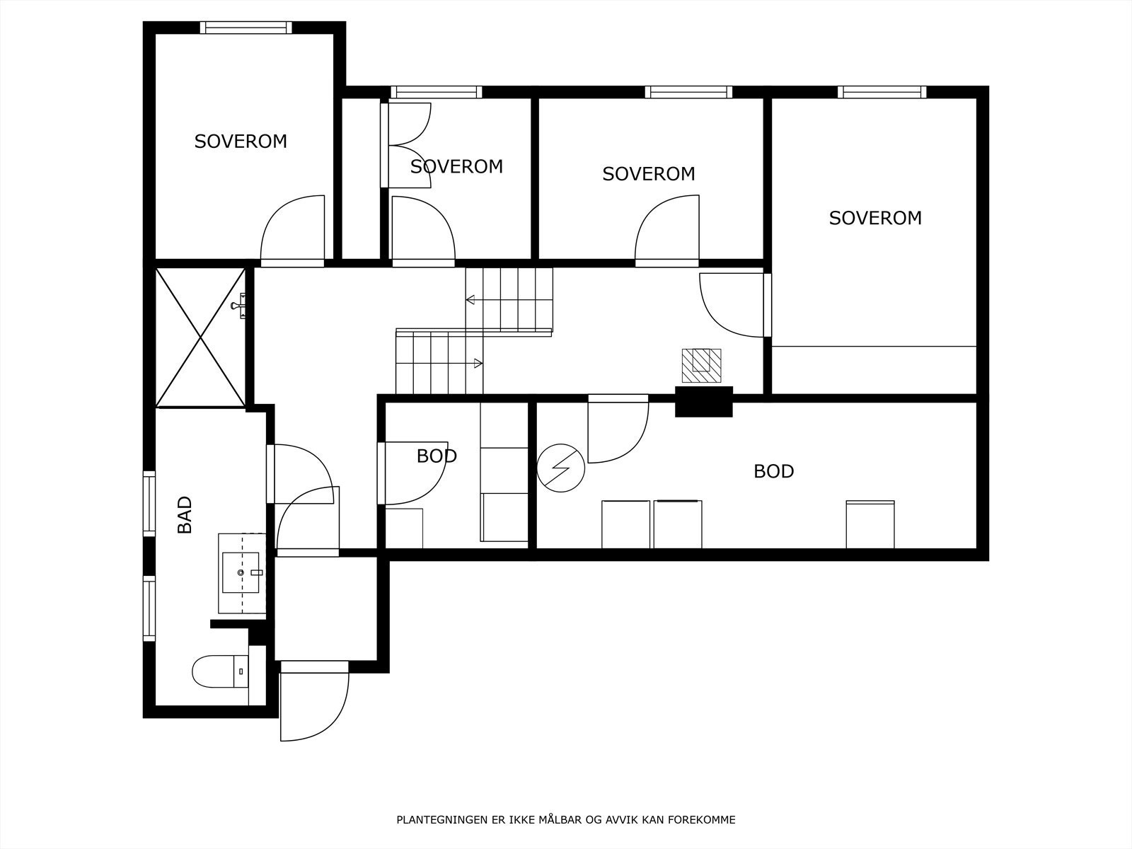
Hytten har følgende planløsning:
Romslig stue som er åpen mot kjøkken. Store vindusflater med panoramautsikt utover skjærgården. Det er plass til både sofagruppe og spisebord i stue/kjøkken etasjen.
En etg. ned: Gang / entre, stort bad fra 2022 med veggheng toalett, dusj og innredning, 2 soverom med skapplass samt bod/teknisk rom.
En etg. ned: Hovedsoverom og soverom, stor bod/teknisk/ vaskerom.
Her kan man nyte sjølivet ved brygga med båtliv og bading!
Hytten har følgende planløsning:
Romslig stue som er åpen mot kjøkken. Store vindusflater med panoramautsikt utover skjærgården. Det er plass til både sofagruppe og spisebord i stue/kjøkken etasjen.
En etg. ned: Gang / entre, stort bad fra 2022 med veggheng toalett, dusj og innredning, 2 soverom med skapplass samt bod/teknisk rom.
En etg. ned: Hovedsoverom og soverom, stor bod/teknisk/ vaskerom.
Her kan man nyte sjølivet ved brygga med båtliv og bading!
NB: Knappen for å vise hele beskrivelsen har kun en visuell effekt.
NB: Knappen for å vise hele beskrivelsen har kun en visuell effekt.
Salgsoppgaven beskriver vesentlig og lovpålagt informasjon om eiendommen
Se komplett salgsoppgaveNyttige lenker
Nærområdet
Eiendomsmegler Norge Kristiansand
Best der du bor
Annonseinformasjon
| FINN-kode | 401090385 |
|---|---|
| Sist endret | 10. apr. 2025 12:29 |
| Referanse | SORM14.2530 |
Annonsene kan være mangelfulle i forhold til lovpålagt opplysningsplikt. Før bindende avtale inngås oppfordres interessenter til å innhente komplett informasjon fra meglerforetaket, selger eller utleier.

























































