Bildegalleri

Snarveien 3
Stor solrik hjørnetomt på populære Eik. Rammetillatelse for 2 tomannsboliger.
- Kommunale avg.
- 20 000 kr per år
- Totalpris
- 6 120 000 kr
- Omkostninger
- 170 000 kr
Nøkkelinfo
Om eiendommen
Om tomten
Beskrivelse av tomten
En unik mulighet på Eik!
- Stor solrik hjørnetomt i populært og familievennlig område
- Gåavstand til barnehager, skoler, og idrettsanlegg
- Kort vei til sentrum, natur, og strender
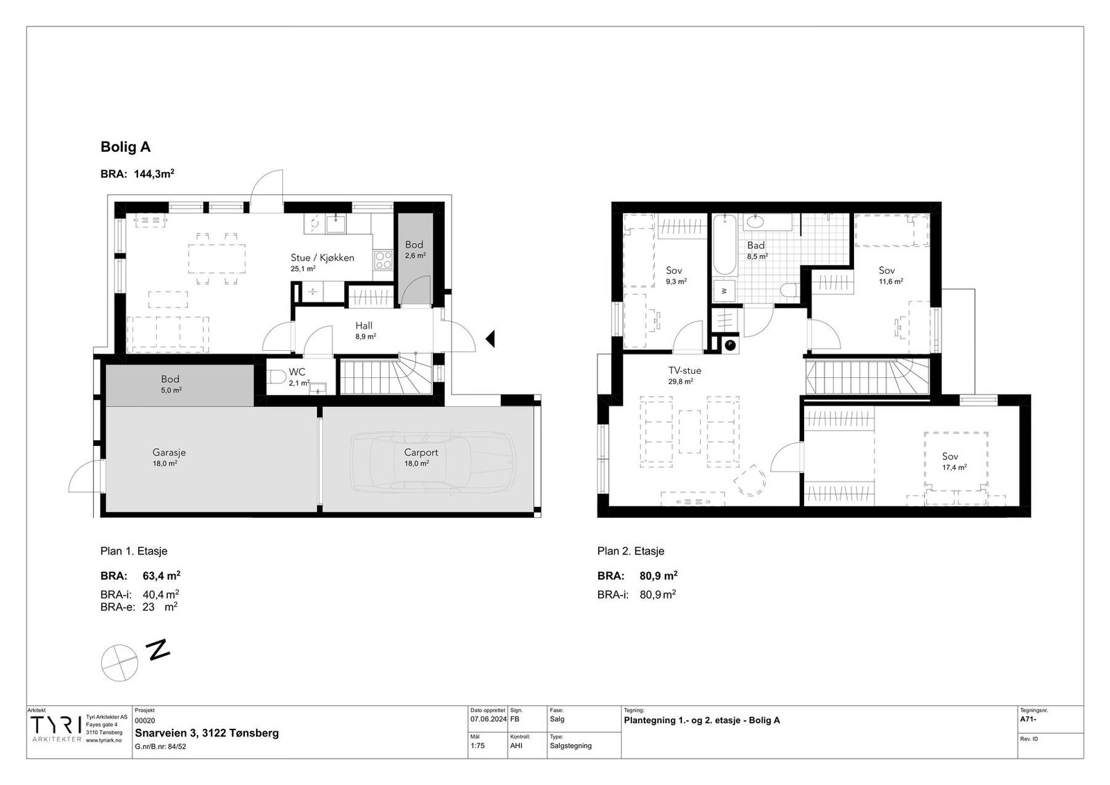
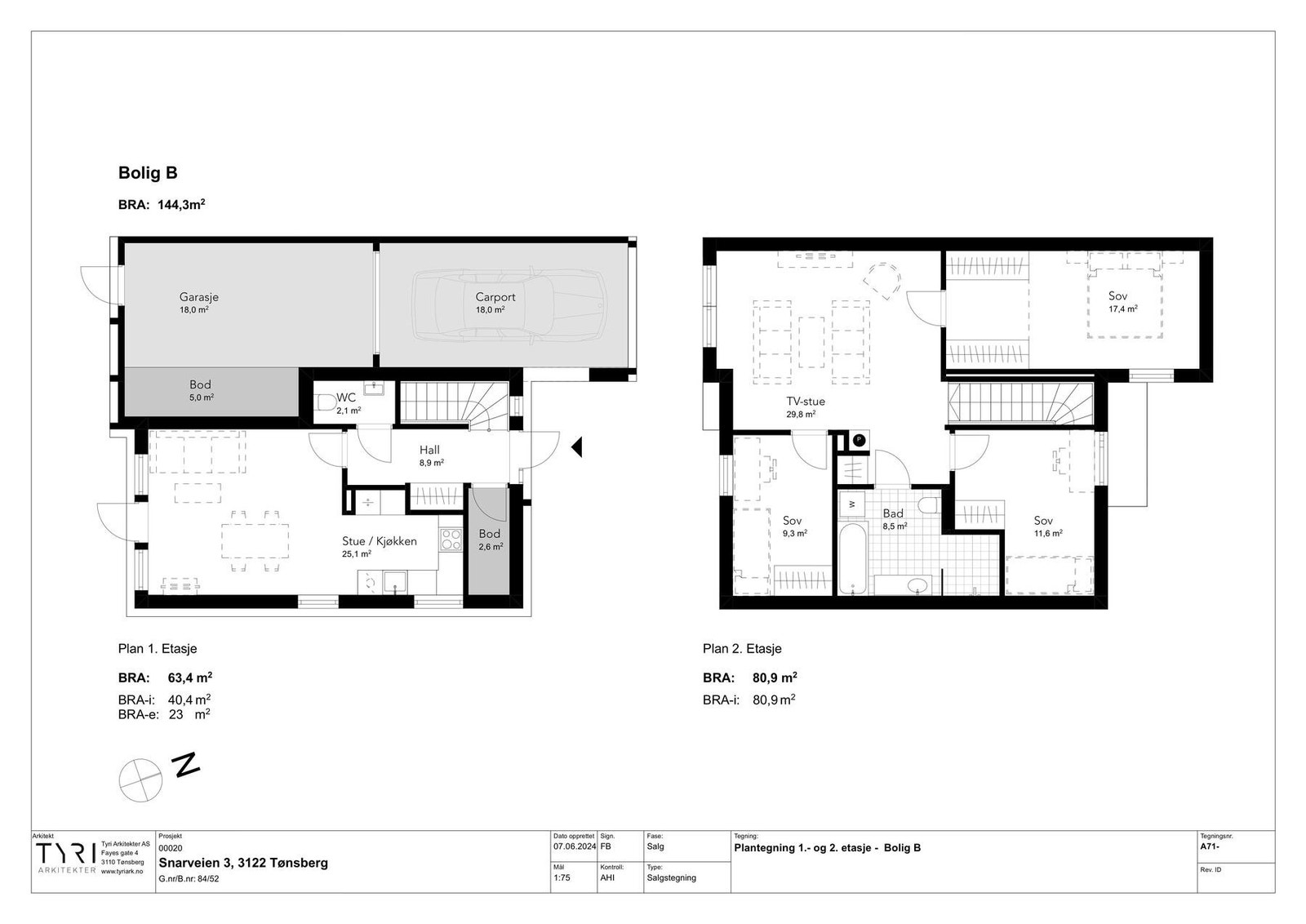
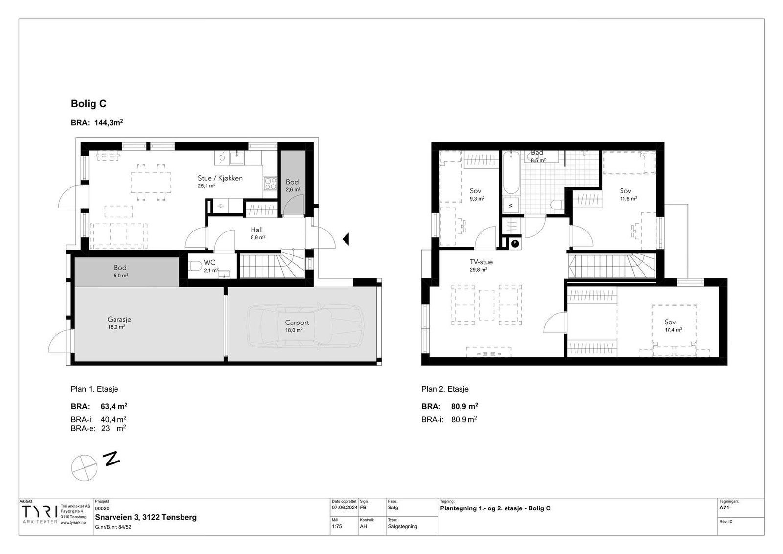
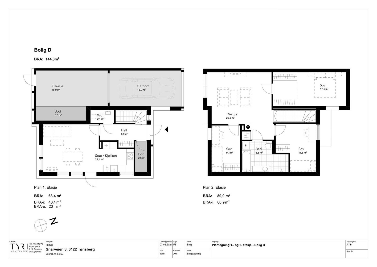
- Rammetillatelse for bygging av 2 tomannsboliger (4 enheter) (se rammetillatelsen i prospektet)
- Godkjent og gjennomarbeidet prosjekt utarbeidet av Tyri Arkitekter medfølger (se bl. a. illustrasjoner og tegninger)
- Hus på 164 kvm. BRA, bygget i 1962. Huset medfølger eiendommen som det er og huset/eiendommen vil ikke bli ryddet før overtagelse.
- Mulighet for å kjøpe ASet som eier eiendommen
Areal
1507,00 m² eiet
Beliggenhet
Skole og barnehage
I kort gangavstand ligger barneskole, ungdomsskole, barnehage og videregående skole.
Adkomst
Ved å trykke på kartet i annonsen får du enkelt tilgang til en spesifisert reiserute fra ønsket startdestinasjon til den aktuelle boligen. Det vil bli skiltet med EIE visningsskilt ved fellesvisninger.
Områdebeskrivelse
Eiendommen ligger i et barnevennlig, populært og veletablert boligområde på Eik i Tønsberg kommune, ca. 3 km fra Tønsberg sentrum. I kort gangavstand ligger barneskole, ungdomsskole, barnehage og videregående skole. Ved Eik skole ligger Eikhallen og fotballbaner. Det er også kort vei populære Greveskogen med bl.a. to lysløyper og videre løypenett til områder med oppkjørte skiløyper vinterstid.
Fra boligen er det fin sykkelavstand til Byskogen, samt til messeområdet med ishall og utvendig skøytebane. Sistnevnte er et godt utgangspunkt for fine turer i Frodeåsen.
Tønsberg er en populær by som har sitt absolutte høydepunkt sommerstid, med stor turisme og et yrende folkeliv. Langs bryggene i Tønsberg kan du nyte av båtlivets gleder og et stort utvalg av restauranter, kafeer og barer. Slottsfjellet byr på attraktive kulturminner, fine turområder og flott, vidstrakt utsikt.
Fra Eik er det ca. 11-12 minutters kjøretur til populære Ringshaugstranda, en nydelig sandstrand med steinmolo, badetrapp og stor gresslette som innbyr til soling og lek. Tønsberg brettseilerklubb er lokalisert på sørsiden av stranden. Av severdigheter og kulturelle tilbud kan Oseberghaugen og Haugar kunstmuseum anbefales.
Økonomi
Eiendomsskatt
Det er ikke innført eiendomsskatt i kommunen.
Faste løpende kostnader
Eier må belage seg på bl.a. følgende løpende utgifter dersom tomten skal bebygges:
Kommunale avgifter fakturert terminvis fra Tønsberg kommune, etter den til enhver tid gjeldende takst.
Kostnader knyttet til strømforbruk og nettleie.
Årlig forsikringspremie.
Årlig vei-/brygge-/velavgift/huseierforening.
Kostnader knyttet til kabel-tv og internett.
Utgiftene vil variere etter den til enhver tid eiers forbruk. Ny eier må selv tegne nødvendige forsikringer.
Formuesverdi
Formuesverdien er ikke fastsatt, men fastsettes av Skatteetaten etter en beregningsmodell som hensyn tar om boligen er "primærbolig" (der eier er bosatt iht. Folkeregisteret) eller "sekundærbolig" (andre boliger man eier). Formuesverdi for skatteåret 2021 var for primærbolig 25% av beregnet markedsverdi, og 90% for sekundærboliger. Det gjøres oppmerksom på at kjøper selv må sende inn opplysninger om adresse, areal, boligtype og byggeår til skattemyndighetene. Det tas forbehold om endring av satser, og henvises til Skatteetatens websider dersom ytterligere informasjon er ønskelig.
Offentlige forhold
Vei, vann og kloakk
Eiendommen har adkomst via offentlig vei.
Eiendommen er tilknyttet kommunalt ledningsnett via private stikkledninger.
Eierseksjonen er selv ansvarlig for private stikkledninger til bygningen.
Eiendommen er tilknyttet kommunalt vannledningsnett og har privat septiktanktank. Det er gitt pålegg om å fjerne septiktanken samt separere spill- og overvann. Drenering må også separeres ut om den er koblet på avløp. Pålegget gjelder avløpsanlegg. Varsel om tvangsmulkt er sendt ut fra Tønsberg kommune 30.09.2022 og gir frist til 31.01.2023 med å følge opp pålegget. Kommunen har holdt tilbake pålegget overfor selger i påvente av riving av huset på eiendommen. Kjøper overtar det fulle og hele ansvar for forholdet.
Vi gjør oppmerksom på at private ledninger vedlikeholdes for eiers regning. For eventuelle private fellesledninger er det normalt tilknyttet solidarisk vedlikeholdsplikt.
Rettigheter og heftelser
Eiendommen overdras fri for pengeheftelser. Kommunen har lovbestemt legalpant i eiendommen som sikkerhet for betaling av kommunale gebyr.
Erklæring/avtale - tinglyst 22.05.1962, dagboksnr. 501651-2/91. Bestemmelse om felles vannverk/ledning.
Eiendommen er registrert med følgende gateadresser:
Snarveien 3
Snarveien 3A
Snarveien 3B
Snarveien 3C
Snarveien 3D
Kjøpsvilkår
Totalpris inkl. omkostninger
Prisantydning kr 5 950 000,-
I tillegg til prisantydning og ev. fellesgjeld, påløper følgende omkostninger:
Dokumentavgift kr 148 750,00,-
Pantattest kjøper kr 260,00,-
Tingl.gebyr pantedokument kr 545,00,-
Tingl.gebyr skjøte kr 545,00,-
Tryg Boligkjøperpakke - selveid bolig/fritid (valgfri) kr 19 900,00,-
Totalpris inkl. omkostninger og fellesgjeld kr 6 120 000,-
Det ovenstående forutsetter at eiendommen selges til prisantydning og at det kun tinglyses ett pantedokument. Det tas forbehold om endringer i offentlige gebyr.
Kjøpekontrakt og overtakelse
Partene er forpliktet til å signere kjøpekontrakt utarbeidet av eiendomsmeglerforetaket rett etter aksept av bud. Kjøpekontrakten kan besiktiges hos eiendomsmegler før bud inngis.
Budgivning
Eiendomsmegler skal legge til rette for en forsvarlig avvikling av budrunden. Vi gjør oppmerksom på at det i forbrukerforhold ikke kan inngis bud med kortere akseptfrist enn kl. 12.00 første virkedag etter siste annonserte visning. Eiendomsmegler kan ikke formidle bud med kortere akseptfrist enn dette. Hos EIE stiller vi strengere krav til frister ved budgivning enn det som følger av Forbrukerinformasjon om budgivning, vedlagt i salgsoppgaven. Bud skal ikke ha en akseptfrist på mindre enn 30 minutter fra budet inngis. Bud med kortere akseptfrist enn 30 minutter kan bli avvist.
Eiendomsmegler har ikke ansvar for forsinkelser som skyldes tekniske feil. Akseptfristen er absolutt, det vil si at selger må akseptere budet og kjøper meddeles aksepten innen utløpet av akseptfristen. Dersom du utsetter inngivelse av bud til tett opp mot akseptfristen på et annet bud er det en reell fare for at eiendommen kan bli solgt før ditt bud kommer frem til megler og/eller megler rekker å bringe budet videre til selger. Husk alltid å ringe megler etter at du har sendt et bud eller budforhøyelse, for å forsikre deg om at budet er mottatt og kan formidles til selger. For øvrig vises det til vedlagte forbrukerinformasjon om budgivning.
Alle bud og budforhøyelser skal være skriftlig. I tillegg må legitimasjon være fremlagt, og budet skal signeres av budgiver. Eiendomsmegler kan ikke formidle bud før disse kravene er oppfylt. Vi oppfordrer til å inngi bud elektronisk, ved å trykke på "Gå til budgivning" på eiendommens hjemmeside på eie.no eller ved å trykke på knappen "Gi bud" i hjem/finn-annonsen. Ved å benytte denne tjenesten vil vilkårene om legitimasjon og signatur fra budgiver være oppfylt.
Eiendomsmegler kan ikke formidle bud med forbehold om at bud eller forhold i bud skal holdes skjult for andre budgivere og interessenter.
Eiendomsmegler skal kontrollere budgiverens finansiering før handel sluttes.
Som kjøper og selger hos EIE vil du få tilsendt budjournalen etter at handel er inngått. Dette innebærer at alle bud vil bli gjort kjent for partene i den endelige kjøpsavtalen. Øvrige budgivere kan be om å få en kopi av budjournalen i anonymisert form.
Det er viktig at du gjør deg kjent med all informasjon om boligen, og at du har spurt om det du eventuelt lurer på, før du legger inn et bud.
Betalingsbetingelser
Fullstendig kjøpesum inkludert omkostninger, samt eventuelt pantedokument tilknyttet lån, skal kunne disponeres over hos megler senest 2 virkedager før overtagelse. Kjøpesummen skal innbetales fra norsk finansinstitusjon og eventuell egenkapital skal innbetales i én samlet betaling fra kjøpers egen konto i norsk finansinstitusjon.
Lovanvendelse
Generelle bestemmelser
Salgsoppgaven er basert på de opplysningene selger har gitt til megler, den bygningssakyndiges tilstandsrapport, samt opplysninger innhentet fra kommunen, Kartverket og andre tilgjengelige kilder. Det er viktig at kjøper setter seg grundig inn i alle salgsdokumentene, herunder salgsoppgave, tilstandsrapport og selgers egenerklæring. Kjøper anses kjent med forhold som er tydelig beskrevet i salgsdokumentene, og slike forhold kan ikke påberopes som mangler. Dette gjelder uavhengig av om kjøper har lest dokumentene. Alle interessenter oppfordres til å undersøke eiendommen nøye, gjerne sammen med fagkyndig før bud inngis. Kjøper som velger å kjøpe usett kan ikke gjøre gjeldende som mangel noe han burde blitt kjent med ved undersøkelsen.
Dersom det er behov for avklaringer, anbefaler vi at interessenter rådfører seg med eiendomsmegler eller egne rådgivere før det legges inn bud.
En bolig som har blitt brukt i en viss tid, har vanligvis blitt utsatt for slitasje og skader kan ha oppstått. Slik bruksslitasje må kjøper regne med, og det kan avdekkes enkelte forhold etter overtakelse som nødvendiggjør utbedringer. Normal slitasje og skader som nødvendiggjør utbedring, er innenfor hva kjøper må forvente og vil ikke utgjøre en mangel.
Kjøper og selgers rettigheter og plikter reguleres av avtalen mellom partene, samt informasjonen som har vært tilgjengelig for kjøperen i forbindelse med handelen. Avtalen utfylles av avhendingsloven, og det gjelder ulike avtalevilkår avhengig av om kjøper er forbrukerkjøper eller ikke. Dette er nærmere beskrevet nedenfor.
På grunn av ulike avtalevilkår kan selger vurdere bud fra en som ikke er forbruker, ulikt fra en forbrukers bud. Dersom kjøper ikke er forbruker, er selger sitt mulige mangelsansvar begrenset fordi eiendommen selges "som den er". Selger kan ikke ta som den er forbehold ovenfor en forbrukerkjøper. Selv et lavere bud fra en som ikke er forbruker kan foretrekkes fordi begrensningen i mulig mangelsansvar kan ha egenverdi for selger. Selger står fritt til å forkaste eller akseptere ethvert bud, og er for eksempel ikke forpliktet til å akseptere høyeste bud.
Budgiver skal i budskjemaet avgi egenerklæring om budgiver er forbruker eller næringsdrivende/ person som hovedsakelig handler som ledd i næringsvirksomhet.
Forbrukerkjøp - definisjon
Med forbrukerkjøp menes kjøp av eiendom når kjøperen er en fysisk person som ikke hovedsakelig handler som ledd i næringsvirksomhet.
Forbruker - avtalevilkår
Eiendommen har en mangel dersom den ikke er i samsvar med kravene som følger av avtalen, eller det foreligger brudd på bestemmelsene i avhendingsloven §§ 3-2 til 3-8. Hvis eiendommen ikke er i samsvar med det kjøperen må kunne forvente ut ifra alder, type og synlig tilstand, kan det være grunnlag for mangelskrav. Det samme gjelder hvis det er holdt tilbake eller gitt uriktige opplysninger om eiendommen. Dette gjelder likevel bare dersom man kan gå ut ifra at det virket inn på avtalen at opplysningen ikke ble gitt eller at feil uriktige opplysninger ikke blir rettet i tide på en tydelig måte.
Boligen kan ha en mangel etter avhendingsloven § 3-3 dersom det er avvik mellom opplyst og faktisk innvendig areal, forutsatt at avviket er på 2% eller mer og minimum 1 kvm.
Ved beregning av et eventuelt prisavslag eller erstatning må kjøper selv dekke tap/kostnader opptil et beløp på kr 10 000 (egenandel).
Ikke-forbruker (næringsdrivende) - definisjon
Hvis kjøper er en juridisk person, eller en fysisk person som hovedsakelig handler som ledd i næringsvirksomhet, vil kjøpet ikke anses som et forbrukerkjøp.
Ikke-forbruker - avtalevilkår
Eiendommen har en mangel dersom den ikke er i samsvar med kravene som følger av avtalen. Eiendommen selges som den er , og selgers ansvar utover det konkret avtalte er da begrenset etter avhendingsloven § 3-9, første ledd andre setning.
Avhendingsloven § 3-3 andre ledd fravikes, og hvorvidt boligens arealsvikt utgjør en mangel vurderes etter avhendingsloven § 3-8.
Informasjon om kjøpers undersøkelsesplikt, herunder oppfordringen om å undersøke eiendommen nøye, gjelder også for kjøpere som ikke anses som forbrukere.
Uautorisert kopiering eller gjenbruk av all tekst og alle bilder i denne annonse/salgsoppgave er ikke tillatt.
Personvern
Som interessent, budgiver og kjøper vil dine personopplysninger bli registrert og lagret for videre oppfølging. Som eiendomsmeglingsforetak har vi plikt til å oppbevare kontrakter og dokumenter i minst 10 år, jf. eiendomsmeglingsforskriften. Mulighetene for å få slettet personopplysninger er derfor begrenset. Les mer om EIE`s behandling av personopplysninger i vår personvernerklæring på eie.no/personvern
Hvitvasking
Eiendomsmeglere er underlagt lov om hvitvasking og tilhørende forskrift, som pålegger oss å gjennomføre kundekontroll av selger og kjøper, herunder fullmektiger. Slike kontrolltiltak vil i praksis gjøres ved å bekrefte våre kunders og reelle rettighetshaveres identitet, samt å innhente informasjon knyttet til handelens formål og tilsiktede art.
Dersom kjøper ikke bidrar til dette, og det medfører at transaksjonen ikke kan gjennomføres eller blir forsinket, misligholder kjøper avtalen. Dette vil kunne gi selger rettigheter etter avhendingsloven, herunder rett til å heve kjøpet og gjennomføre dekningssalg for kjøpers regning dersom misligholdet er vesentlig.
I tilfeller der det er selger som ikke bidrar til at megler får gjennomført løpende kontrolltiltak underveis i oppdraget må megler stanse gjennomføringen av transaksjonen. Selger vil i så fall ha misligholdt sine forpliktelser, og kjøper vil kunne ha krav mot selger etter avhendingslovens bestemmelser om mislighold og forsinkelse.
Dersom nødvendige kontrolltiltak ikke lar seg gjennomføre vil EIE eiendomsmegling ikke kunne bistå med handelen eller foreta oppgjør.
Meglers vederlag
Følgende er avtalt om meglers vederlag, og skal betales av selger:
Provisjon 0,000 % av salgssummen inkl. mva
Tilrettelegging: kr. 15 900,00
Oppgjørsgebyr: kr. 7 900,00
Grunnpakke selveier: kr. 18 650,00
Gebyr for utsatt betaling: kr. 3 990,00
EIE Look: kr. 4 750,00
Visning og overtagelse pr. stk.: kr. 3 500,00
Premium Markedspakke : kr. 15 900,00
Selger skal betale utlegg i samsvar med oppdragsavtalen. stipulert til ca. kr. 0.
Samlet skal selger betale ca. kr. 70 590 for vederlag og utlegg ved salg til prisantydning.
Dersom handel ikke kommer i stand eller oppdraget sies opp, har oppdragstaker krav på rimelig vederlag for medgått tid/utført arbeid og avtalte utgifter (utgifter til påløpte visninger, innhenting av opplysninger, markedspakke og tilrettelegging), samt eventuelle utlegg. Ved beregning av vederlaget tas det utgangspunkt i timespris på oppdraget. Alle priser er inkl. mva.
Om oppdraget
Oppdr.nr: 67251011
Ansvarlig megler: Robert Hoff
EIE Tønsberg
Vestfold Eiendomsmegling AS
NO 955 607 171 MVA
EIE vekst
EIE AS, og i noen tilfeller eiendomsmeglerforetak som er tilknyttet kjeden EIE eiendomsmegling, har eierinteresser i selskaper som leverer produkter og tjenester som våre kunder tilbys i forbindelse med eiendomstransaksjonen. Les mer om dette på https://eie.no/eiendom/eie-investerer
Nyttige lenker
EIE eiendomsmegling Tønsberg
Nærområdet
Annonseinformasjon
| FINN-kode | 404338692 |
|---|---|
| Sist endret | 06. okt. 2025 09:27 |
| Referanse | R-67251011 |
Annonsene kan være mangelfulle i forhold til lovpålagt opplysningsplikt. Før bindende avtale inngås oppfordres interessenter til å innhente komplett informasjon fra meglerforetaket, selger eller utleier.















